单身美女滴美式小窝窝· 装修实录
2013-11-11 15:22:26 来源: 评论:0 点击:
从6月份签合同到现在,华丽丽滴过了1个、3个、5个月老,我的小窝窝终于开工老~本从准备阶段就想着开始写日记,可是,可是···懒!这拖到
从6月份签合同到现在,华丽丽滴过了1个、3个、5个月老,我的小窝窝终于开工老~本从准备阶段就想着开始写日记,可是,可是···懒!这拖到了正式开工的时候···
先,还是国际惯例一哈!
【楼盘】 东边-万科某城
【户型】两室+一室(为什么另算,详见后)、两厅、一厨、一卫、一阳台
【建筑面积】88,套内69 (21.5%公摊的就是这一梯两户的悲伤!)
【使用面积】110
【长住人口】小艾+大宝+小宝(后附靓照哦~~~)
【装修预算】这东西除了用来超,还有存在的价值莫???
【包工方式】半包
【风格】 小美式
【装修公司】 橙果装饰
【设计师】 陈林(付费设计)
【装修公司监理】 妖怪小幸(据说还有加个·小纯洁)
【施工队长】 谭洪兵
【开工日期】 2013.11.9
【竣工日期】 未知(留到竣工的时候填吧)
【买房路程+些许心得】 这个房子是二手房,这套房子都是人家才决定卖,都还没挂出来,就被我瞄上老~~~嘿嘿~周边的配套也基本成熟了,这些都是我能看得到的东西,所以踏实~
1.为什么买二手房,原因很简单的,一是现房,二是33实在不相信户型图和售姐等等···虽说户型图是明明白白的,上面标的尺寸是不会骗人的~但素,你旁边的户型呢?我就见到过自家入户,正对着的就是邻居家的卫生间···这些,是你不入户发现不了的~还有朝向、光照、周边配套的成熟度以及房间里的管道什么的~~~好吧,我承认,我很纠结~~~
不过,买新房的话,如果你要求看你邻居的户型,应该也能看得到滴~再结合一下沙盘模型,这种典型自家阳台对邻居厨房卫生间的情况还是可以避免的~
2、为什么买东边~原因也很简单~东边不那么堵车~
北边排除~
西边三环周边及以内,太堵,每天上下班,苏坡立交、武侯立交,好堵又堵~~~我可不想饥肠辘辘滴在路上听肚皮咕噜咕噜叫~往三环外走,外光华外双楠,好是好,就是有点偏配套还得等~
南边~未来的中心~一个高端洋气上档次滴地方~但是尼,南边贵啊~~~便宜点的地方,又偏得吓人,而且这个“便宜”也不见得好便宜~
小艾小建议:房子是用来住的,实用好用是最大的前提。现在很多开发商用种种赠送来满足大家对高房价的自我安慰,但是羊毛出在羊身上~不要盲目滴追求赠送面积~ 另外,送的多不一定好用!如果你身边有个懂房建施工、设计什么的都好,如果找个你定好的设计师去帮你选户型,那是最好不过的了,帮你看看这些送的能怎么改怎么用~直接就帮你把布局确定了~否则,如果以后出现鸡肋,你会很纠结滴~
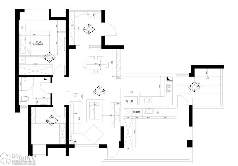
找不到户型图了,就直接来一个设计平面图吧~

房子中规中矩,浪费面积少,有个我想要的大大的露台, 可进可退~缺点嘛,房子小!卫生间的门正对厨房门!好在卫生间的墙是12的砖墙,可以改~可是,什么下水、电,统统要改!被门夹了的设计,你当初为什么不把那个门挪到另一边去???!!!
各位,发现右上角的那个小房间没?那是就是那“一室”~这是个阳台,有顶盖的,我觉得将他改成一个书房~但是坑爹的是,这个房间里面没有电!!! 没有任何的开关插座!!!你知道这意味着神马吗???哎~
好了,该让业主上来露个面噻~~~噔噔噔~~~噔~~~~~~~

拍照的就是小艾啦~~~也算是一起了噻~~~
先,还是国际惯例一哈!
【楼盘】 东边-万科某城
【户型】两室+一室(为什么另算,详见后)、两厅、一厨、一卫、一阳台
【建筑面积】88,套内69 (21.5%公摊的就是这一梯两户的悲伤!)
【使用面积】110
【长住人口】小艾+大宝+小宝(后附靓照哦~~~)
【装修预算】这东西除了用来超,还有存在的价值莫???
【包工方式】半包
【风格】 小美式
【装修公司】 橙果装饰
【设计师】 陈林(付费设计)
【装修公司监理】 妖怪小幸(据说还有加个·小纯洁)
【施工队长】 谭洪兵
【开工日期】 2013.11.9
【竣工日期】 未知(留到竣工的时候填吧)
【买房路程+些许心得】 这个房子是二手房,这套房子都是人家才决定卖,都还没挂出来,就被我瞄上老~~~嘿嘿~周边的配套也基本成熟了,这些都是我能看得到的东西,所以踏实~
1.为什么买二手房,原因很简单的,一是现房,二是33实在不相信户型图和售姐等等···虽说户型图是明明白白的,上面标的尺寸是不会骗人的~但素,你旁边的户型呢?我就见到过自家入户,正对着的就是邻居家的卫生间···这些,是你不入户发现不了的~还有朝向、光照、周边配套的成熟度以及房间里的管道什么的~~~好吧,我承认,我很纠结~~~
不过,买新房的话,如果你要求看你邻居的户型,应该也能看得到滴~再结合一下沙盘模型,这种典型自家阳台对邻居厨房卫生间的情况还是可以避免的~
2、为什么买东边~原因也很简单~东边不那么堵车~
北边排除~
西边三环周边及以内,太堵,每天上下班,苏坡立交、武侯立交,好堵又堵~~~我可不想饥肠辘辘滴在路上听肚皮咕噜咕噜叫~往三环外走,外光华外双楠,好是好,就是有点偏配套还得等~
南边~未来的中心~一个高端洋气上档次滴地方~但是尼,南边贵啊~~~便宜点的地方,又偏得吓人,而且这个“便宜”也不见得好便宜~
小艾小建议:房子是用来住的,实用好用是最大的前提。现在很多开发商用种种赠送来满足大家对高房价的自我安慰,但是羊毛出在羊身上~不要盲目滴追求赠送面积~ 另外,送的多不一定好用!如果你身边有个懂房建施工、设计什么的都好,如果找个你定好的设计师去帮你选户型,那是最好不过的了,帮你看看这些送的能怎么改怎么用~直接就帮你把布局确定了~否则,如果以后出现鸡肋,你会很纠结滴~
找不到户型图了,就直接来一个设计平面图吧~

房子中规中矩,浪费面积少,有个我想要的大大的露台, 可进可退~缺点嘛,房子小!卫生间的门正对厨房门!好在卫生间的墙是12的砖墙,可以改~可是,什么下水、电,统统要改!被门夹了的设计,你当初为什么不把那个门挪到另一边去???!!!
各位,发现右上角的那个小房间没?那是就是那“一室”~这是个阳台,有顶盖的,我觉得将他改成一个书房~但是坑爹的是,这个房间里面没有电!!! 没有任何的开关插座!!!你知道这意味着神马吗???哎~
好了,该让业主上来露个面噻~~~噔噔噔~~~噔~~~~~~~

拍照的就是小艾啦~~~也算是一起了噻~~~
相关热词搜索: 装修实录













